Este site utiliza cookies para permitir a mudança de língua e o armazenamento dos seus imóveis favoritos. Ao utilizar este site, concorda que o mesmo utilize cookies.

Moradia T3 em Santana – Sesimbra | Terraço Panorâmico com Vista Lisboa e Mar

425.000€




Referência

DC236

Natureza

Venda

Tipo de Imóvel

Moradia

Subtipo de Imóvel

Moradia em Banda

Tipologia

T3

Estado

Razoável

Certificado energético

B-

Ano

2007


Distrito

Setúbal

Concelho

Sesimbra

Freguesia

Sesimbra (Castelo)

Código Postal

2970-047


Área Útil

175 m2

Área Bruta

261 m2

Área de Terreno

204 m2



Contactar Imobiliária

*Preenchimento obrigatório
Ao clicar em 'Enviar', declara que aceita a nossa Política de Privacidade.
Moradia T3 em Santana – Sesimbra | Terraço Panorâmico com Vista Lisboa e Mar
Moradia T3 em ponta de banda, construída em 2007, situada em Santana, numa rua sem saída, muito calma e predominantemente residencial. A casa dispõe de terraço envolvente, com vistas sobre Lisboa, Serra de Sintra e o mar, beneficiando de muita luz natural ao longo do dia.

Localização & Envolvente
A moradia encontra-se numa zona privilegiada de Santana, com acesso rápido a uma vasta oferta de comércio, serviços e transportes, ideal para quem procura conforto e conveniência no dia a dia:
•Supermercados (Pingo Doce, Aldi e Intermarché) a menos de 5 minutos
•Bancos (Millennium BCP e Crédito Agrícola)
•Centro de Saúde e clínicas privadas nas proximidades
•Comércio e serviços diversos a menos de 5 minutos
•Agrupamento de Escolas de Sampaio a menos de 10 minutos
•A 15 minutos das praias do Meco
•A menos de 10 minutos do centro de Sesimbra
•Próxima do Cabo Espichel
•A apenas 35 minutos de Lisboa
•Acesso a autocarros para Lisboa a 2 minutos a pé

Distribuição da Moradia
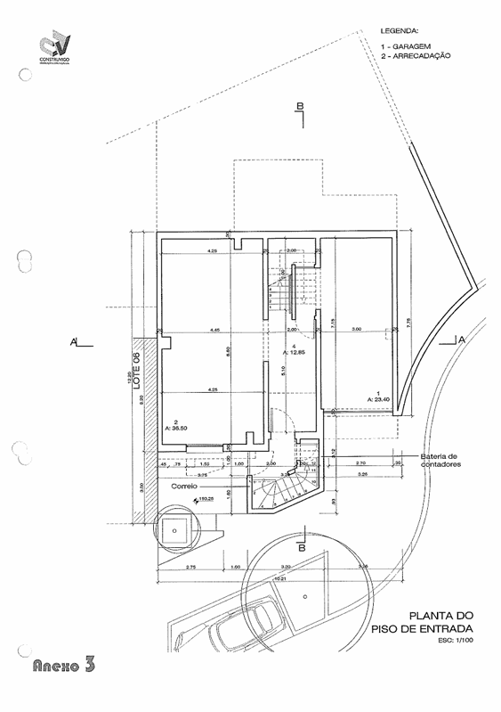
Rés-do-chão:
•Garagem com capacidade para 2 carros de tamanho medio
•1 arrecadação + 1 divisão
•Hall de entrada 
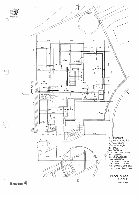
Primeiro Piso:
•Sala de estar luminosa, com ligação ao terraço 
•Casa de banho social
•Cozinha e sala de refeições integradas
•A moradia é vendida com todos os eletrodomésticos incluídos
Segundo Piso:
•Hall dos quartos com envidraçado vertical que se estende desde a sala (1º piso) até ao 2º piso, com vistas sobre a Serra de Sintra, Lisboa e o mar
•Dois quartos com roupeiros embutidos, ambos com acesso a pequenas varandas individuais, servidos por uma casa de banho comum
•Suíte orientada a sul, com acesso a um amplo terraço, 

Conforto, Equipamentos e Características
•Sistema de aquecimento central através de bomba ligada à lareira, solução económica e fiável
•Ar condicionado na sala
•Pré-instalação de ar condicionado nos quartos
•Pavimento em madeira maciça na sala e nos quartos
•Caixilharia em alumínio com vidros duplos
•Águas quentes sanitárias com painel fotovoltaico no verão e caldeira no inverno
•Gás canalizado
•Sistema de alarme
•Porta de entrada blindada
•Portão de garagem automático

Estado de Conservação
A moradia encontra-se em bom estado geral, necessitando apenas de pintura exterior e de intervenção nas persianas do envidraçado, trabalhos simples e já identificados. Existem orçamentos disponíveis, garantindo total transparência e previsibilidade ao comprador.
Uma moradia sólida, funcional e bem localizada, ideal para habitação própria, tranquilidade e proximidade a Lisboa e às praias.

Marque a sua visita com:
Dimitri Cabrita
+/3/5/1 / 9/3/5 / 8/7/0 / 1/1/1 (Wh4ts4pp – resposta mais eficiente)  
Falo português, francês, espanhol e inglês.

Geral
ClimatizaçãoAquecimento central:Sim
ClimatizaçãoAr condicionado:Sim
ClimatizaçãoLareira:Sim
ClimatizaçãoCaldeira:Sim
CaixilhariaAluminio:Sim
CaixilhariaVidro Duplo:Sim
VistasCidade:Sim
VistasMar:Sim
VistasPanorâmicas:Sim
VistasSerra:Sim
Exposição SolarNorte:Sim
GeraisNº de Divisões :3
GeraisVentilação forçada:Sim
GeraisNº de Casas de Banho:3
GeraisNº de Terraços:1
GeraisNº de Arrecadações:2
GeraisLavandaria:Sim
GeraisDespensa:Sim
GeraisAlpendre:Sim
GeraisArmário de roupa / closet:Sim
GeraisSuite:Sim
GeraisRecomendado para crianças:Sim
Luz NaturalMuito Iluminado:Sim
Ar CondicionadoPré-instalado:Sim
InfraestruturasEsgotos:Sim
GaragemIndividual:Sim
GaragemFechada Interior:Sim
GaragemLugar Interior:Sim
CozinhaMóveis madeira:Sim
CozinhaMóveis lacado:Sim
CozinhaPlaca:Sim
CozinhaForno:Sim
CozinhaExaustor:Sim
CozinhaMicro-ondas:Sim
CozinhaFrigorífico:Sim
CozinhaMáquina de lavar loiça:Sim
CozinhaMáquina de lavar roupa:Sim
PavimentoParquê de madeira:Sim
PavimentoMadeira:Sim
PavimentoTijoleira:Sim

Este imóvel não tem áreas definidas.

Imóveis
Semelhantes

Moradia
Venda
EXCLUSIVO

330.000€

Moradia em Castelo (Sesimbra)

330.000€

Setúbal / Sesimbra / Sesimbra (Castelo)


Ref: SV126

Ref: SV126

2

1

Moradia
Venda

590.000€

Moradia em Castelo (Sesimbra)

590.000€

Setúbal / Sesimbra / Sesimbra (Castelo)


Ref: DC129

Ref: DC129

160 m2

3

3

Moradia
Venda

525.000€

Moradia em Castelo (Sesimbra)

525.000€

Setúbal / Sesimbra / Sesimbra (Castelo)


Ref: DC131

Ref: DC131

200 m2

4

3